
Project Details
Plan # 19-02-018-1
Plan # 19-02-018-1
Couldn't load pickup availability
Regular price
$1,644.00
Regular price
Sale price
$1,644.00
Unit price
per
Plan Name: 19-02-018-1
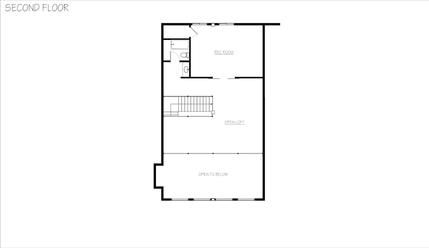
Total Livable Square Footage: 2,501
Main Floor: 1,464
2nd Floor: 1,037
Garage / Car #: No garage
Number of Bedrooms: 2
Number of Bath: 2.5
Home categories: Mountain / Timber / Rustic
Facebook Discussion
Request Modifications
View full details
Total Livable Square Footage: 2,501
Main Floor: 1,464
2nd Floor: 1,037
Garage / Car #: No garage
Number of Bedrooms: 2
Number of Bath: 2.5
Home categories: Mountain / Timber / Rustic
Facebook Discussion
Request Modifications






BROWSE EXISTING PLANS
-
Plan # 23-04-018
Regular price $2,613.00Regular priceUnit price per -
Plan # 24-04-028
Regular price $2,686.00Regular priceUnit price per -
Plan # 23-04-033
Regular price $2,453.00Regular priceUnit price per -
Plan # 24-04-013
Regular price $1,599.00Regular priceUnit price per